
Escreva para nossa equipe
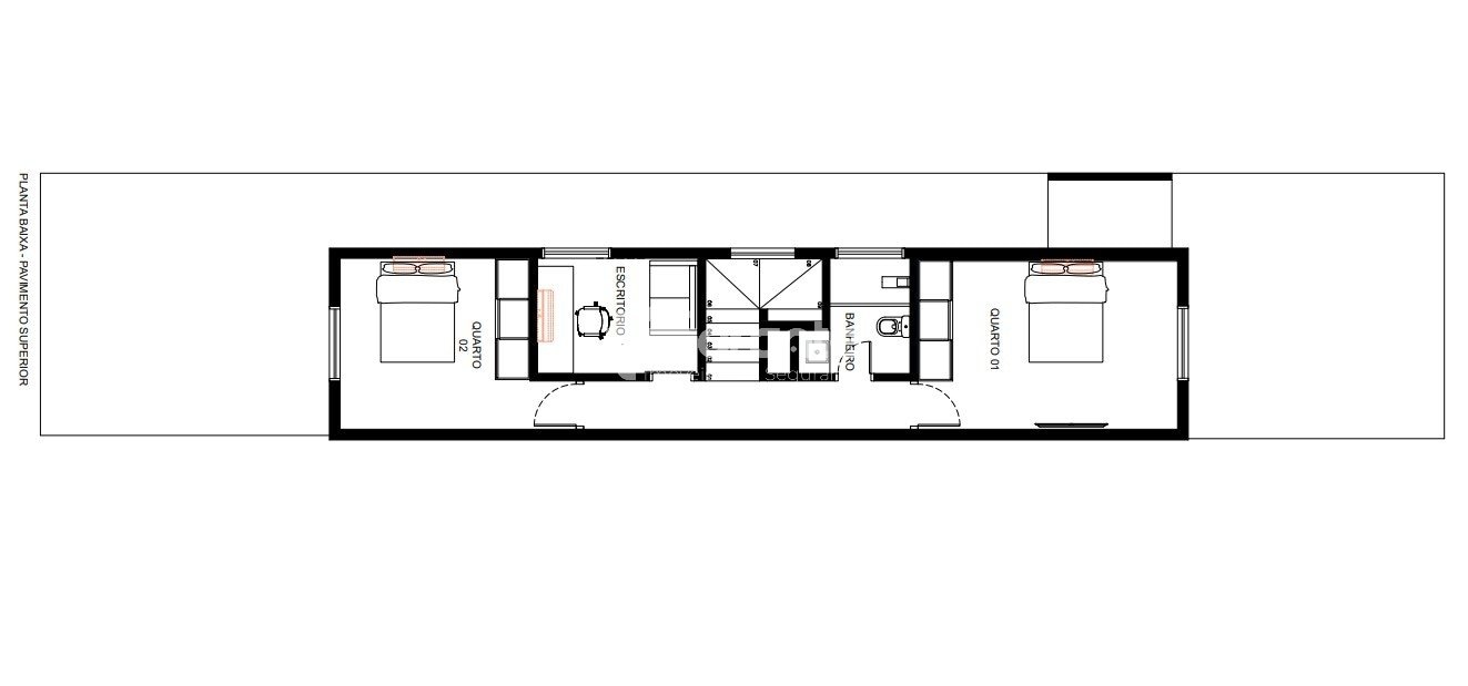
Casa no Brooklin em rua tranquila de paralelepípedo, muito charmosa, em região muito bem localizada para venda em SP - São Paulo com 190m². A Casa possui 3 quartos, 2 vagas, 2 banheiros sendo 1 suíte além de um lindo lavabo no térreo. O imóvel é equipado com energia solar, área de serviço, armários, varanda gourmet e ar-condicionado. O imóvel está em fase final de reforma de modernização/atualização, tudo com muita qualidade e bom gosto. Condução de toda reforma sendo realizada pelo genial escritório de arquitetura @ onzemeiasete.arq Alguns itens da reforma: - Revisão e revitalização da fachada; - Pintura de todo imóvel; - Instalação de sistema de gás; - Instalação de sistema de aquecimento de água a gás com duchas com muita pressão e vazão; - Esquadrias novas; - Portas novas; - Telhado revisado; - Troca de toda parte elétrica contando com redimensionamento para a nova infraestrutura com um novo quadro de energia de acordo com projeto de engenheiro eletricista; - Hidráulica nova; - Dimensionamento e instalação de sistema de ar condicionado Hi Wall; - Troca de piso no pavimento térreo; utilizaremos piso monolítico; - Novas luminárias; - Restauro da escada; - Pergolado de alumínio e vidro para nova área gourmet;
Simule seu financiamento em minutos com todos os bancos e consiga a melhor proposta.
Escreva para nossa equipe